The EA-K chain actuators for the main closing edges are now available for software LogiKal from Orgadata. Orgadata is a software company with headquarters in Germany and a worldwide sales structure. 40 years ago, Orgadata set itself the goal of digitising window, door and facade construction. The rental software LogiKal is a modern tool with which window, door and facade manufacturers can plan and produce their products in detail, including CAD and CNC connection for metal construction 4.0. LogiKal can be used for all common profile systems.
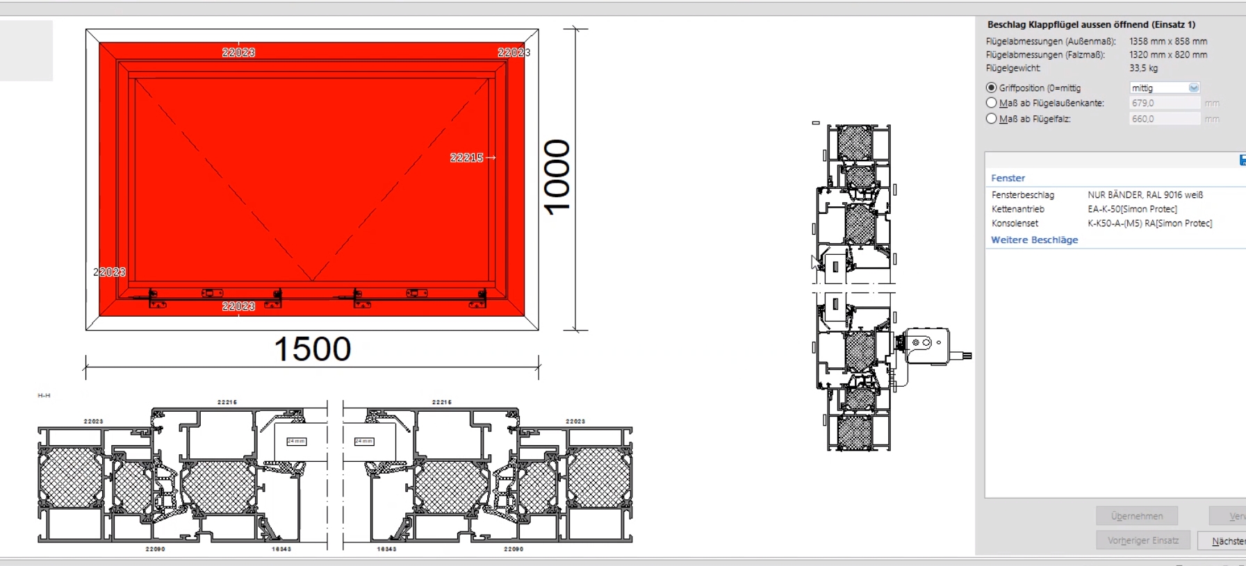
LogiKal from Orgadata guides the user through the planning process. In the first step the user selects the elements to be installed and the appropriate accessories. Manufacturers offer the installers an online catalogue from which the products are selected. The window installer chooses, for example, from the catalogues profile system, hinges, drive manufacturer and actuator variant. SIMON PROtec provides the EA-K chain actuators including brackets for digital planning. The LogiKal software can also provide the fabricators with the relevant data for window production for CNC-controlled double mitre saws and profile processing machines on request. The programming at the machines is thus completely eliminated..
The SIMON PROtec online catalogue for rental and download includes the chain actuators EA(230)-K-30 and EA(230)-K-50 with brackets for the main closing edges. Talk to your Orgadata sales partner and order the new SIMON PROtec catalogue. We are happy to assist you with advice.
More information about LogiKal from Orgadata can be found on www.orgadata.com
Chain actuators EA(230)-K-30 and EA(230)-K-50 are now available for rent and download at Orgadata.
COM_EB_IFRAME_COOKIE_AGREE_CONTENT